
街中でお仕事をされているご夫婦が選んだのは、
とっても便利な立地にある、眺めの良い15Fのお部屋。
奥様のお好きなシンプル×ナチュラルな雰囲気にまとめつつ、
ご家族のライフスタイルに合わせた、暮らしやすいおうちがご希望でした。
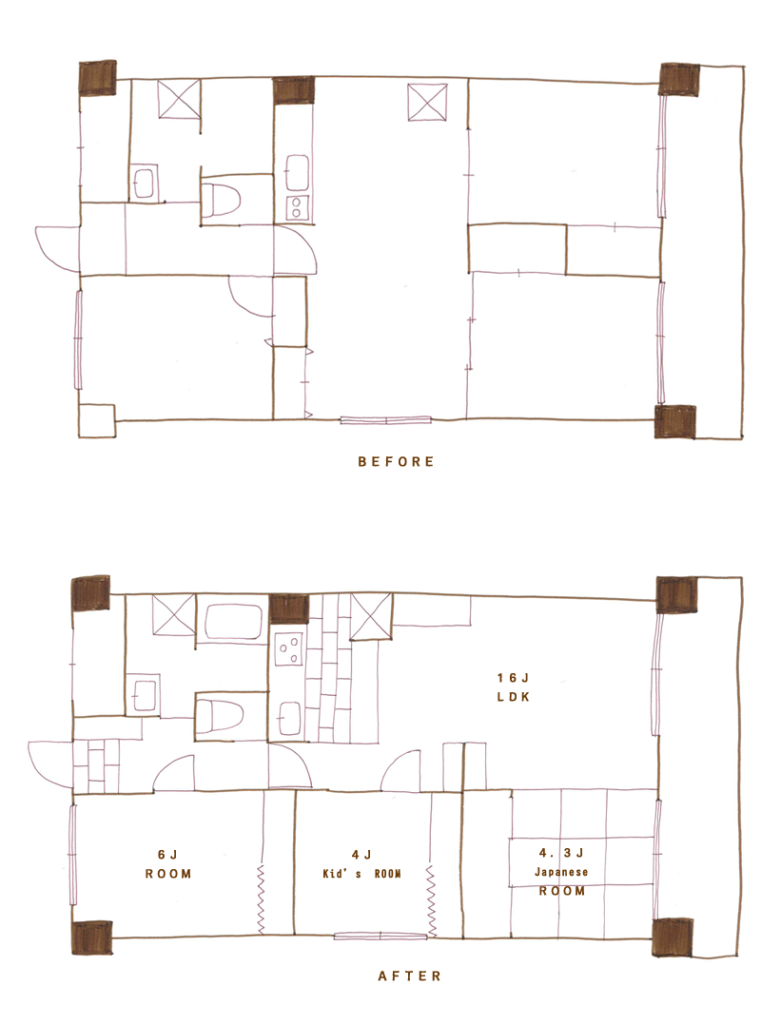
ご主人のリクエストでつくられた畳のお部屋には、琉球畳を採用。
「和室」として仕切ることなく、ごろーんと横になれる、
心地よい寛ぎの和スペースが生まれました。
リビングの床は、もちろん無垢のフローリング。
床暖房となるととってもコストがかかってしまいますが、
無垢材なら、そこまでの予算をかけることなく、
夏は涼しく冬はあたたかく過ごせちゃいます。
愛娘ちゃん用の子供部屋はLDKのすぐそばに配置し、
いつでもママの目と声が届くように。
床はキズのつきにくいフロアタイルを貼っています。
すっきり暮らすために、収納はたっぷりと確保。
クローゼットは半透明のアコーディオンカーテンで目隠ししました。
家族3人の暮らしをしっかりと受け止めてくれる、
そんな安心感のあるおうちに仕上がりましたよ♪

































